Listado por UL para pernos de descarga automática universales resistentes al fuego de 3 horas

Vistas:50     Autor:kerry     Hora de publicación: 2025-12-02      Origen:https://www.echardwarechina.com/

Listado por UL para pernos de descarga automática universales resistentes al fuego de 3 horas

perno de descarga automática


Información general:

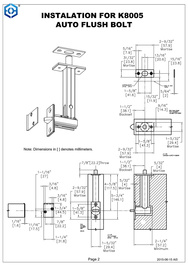
El K8005 Perno de descarga automática utiliza un accesorio de preparación de perno de pestillo estándar con una broca de 1-1/8"[28.6] de diámetro. Para puertas biseladas, la cara del K8005 gira, lo que hace que el perno sea adecuado para todos los bordes de la puerta.

Solución de problemas:

Consejos de mantenimiento:

1)1.Si la operación es rígida o la leva se atasca, los orificios perforados no son del todo perpendiculares y/o no se juntan adecuadamente. En este caso, puede ser necesario romper el borde interior de los orificios que se cruzan con un taladro más pequeño o una lima redonda.

2) Si romper el borde no mejora la operación, verifique que los dos conjuntos estén acoplados correctamente como se indica en el Paso 2 de las instrucciones de instalación.

El K8005 proporcionará años de funcionamiento sin problemas. El engrase periódico con grasa a base de molibdeno o litio prolongará la vida útil del K8005.


Consejos de preparación:

1. No exceda los 5/32"[4]de profundidad al mortajar los dos rectángulos.

Mayores profundidades dificultarán el acoplamiento de los dos conjuntos.

2. Los orificios de 1-1/8"[28.6] deben perforarse perpendicularmente a los bordes de la puerta.

así como paralelo a las caras de la puerta.

3.Puertas socavadas:

3.1 La preparación es con perno superior como se sugiere.

3.2 Prepare únicamente la mortaja vertical del perno inferior.

3.3 Corte la puerta según la cantidad requerida.

3.4 Vuelva a perforar la mortaja vertical en la misma cantidad que el corte socavado.

3.5 Prepare la mortaja horizontal según la plantilla.


Instalación de pernos:

1.Retire la brida e instale la carcasa del perno.

2.Instale la carcasa de la leva en las ranuras de la carcasa del perno. Asegure la placa de ajuste

con 2 c/u.#8 APS.

Nota: Si la carcasa de la leva gira, no está acoplada a la carcasa del perno.

3.Ajuste la cabeza del perno de 0"a 1/2"[12.7]por encima de la guía de la cabeza del perno. Asegure con

2 c/u#8 APS.


K8005 自动插鞘说明书_01K8005 自动插鞘说明书_02

Para hacer nuestros productos más competitivos y mejorar la confianza de los clientes, hemos obtenido las siguientes certificaciones de calidad de producto:

Certificado UL R41359 y CE para cierrapuertas,

Certificado UL R41361 ,SA46258 para dispositivo de salida de pánico,

Certificado UL R41383 y EN1935:2002 para bisagras,

Certificado UL R41710 para americano y cerradura

CE para cerradura de embutir

EN1906:2012 para Manijas,

EN12209:2016 para Cerraduras y así sucesivamente.



SUSCRIPCIONES DE CORREO Comprenda nuestra dinámica de manera oportuna.

Contáctenos

Tel.: + 86-0750-3987161
Aura :0086-18138660975
Jenny:0086-18138962651
Obtenga calidad de marca famosa al costo de fábrica
Derechos de autor EC HARDWARE CO.LTD. Todos los derechos reservados.Mapa del sitio.